An exceptional opportunity for an owner-user or investor in the heart of downtown Ottawa.
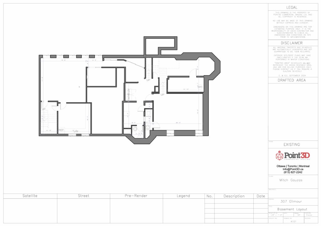
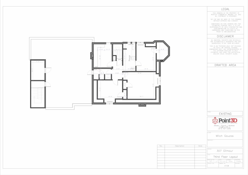
This standalone office building will be delivered vacant on closing as the current owner-occupier is relocating. The property is zoned for a wide range of commercial uses including diplomatic missions and medical offices, and also presents an excellent urban redevelopment opportunity. Existing zoning permits a building height of up to 23 meters, allowing for a mixed-use residential mid-rise with ground-floor retail. The building is BOMA-certified with 6,863 sq. ft. of usable/rentable area on a generously sized lot featuring 12 parking spaces. The main floor offers 1,701 sq. ft. with a reception area, boardroom, six enclosed offices, and a washroom. The second floor measures 2,029 sq. ft. and includes eight enclosed offices, an open bullpen area, and a washroom. The third floor includes four offices, a kitchenette, and access to the flat roof.Ideally situated within walking distance of the Elgin Street Courthouse, City Hall, and Parliament Hill, the property offers unbeatable accessibility. With a Walk Score of 100, Transit Score of 87, and Bike Score of 99, it is one of Ottawa’s most connected urban addresses. Whether you are seeking a turn- key office building or a prime redevelopment site, this property offers exceptional potential and flexibility.










Contact My Ottawa Agent, Commercial Real Estate Agent Mitch Gauzas for pricing and more information. We specialize in commercial real estate sales and leasing in Ottawa, Kanata, Nepean, Orleans, Clarence-Rockland, Ottawa South, and Eastern Ontario. Our services include retail leasing, industrial leasing, office leasing, selling properties, and investment services.